Get new listings emailed daily! JOIN SIGN IN
Lisa Sheppert
REALTOR®, ABR, AHWD
(337) 277-2077
Facebook Icon LinkedIn Icon Pinterest Icon Instagram Icon Twitter Icon 
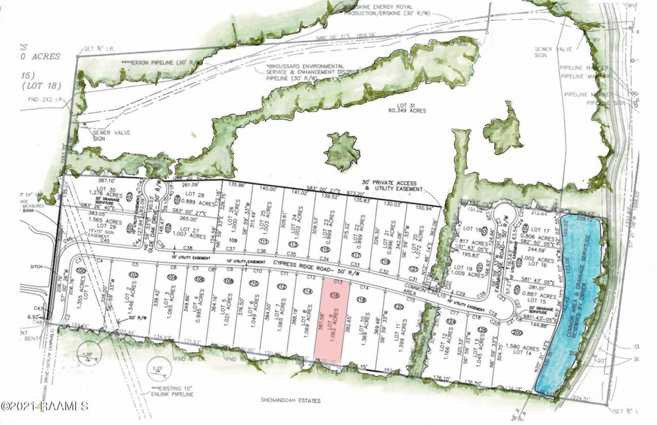
116 Cypress Ridge Road, Broussard, LA 70518 Photo

1 Total Photos [Click to View All]

116 Cypress Ridge Road Broussard, LA 70518
$164,610
Active / MLS# 21000719 / Land - Residential / Broussard
0 Beds

GRACIOUS LIVING * TIMELESS CHARM Looking for heirloom quality land to plant family roots and build the home of your dreams? Janin Farms offers 1+acre homesites, beckoning a community that reflects, respects and enhances the natural surroundings. A sanctuary for residents to Retreat & Restore yet Convenient to Highway 90 and Ambassador Caffery. Located along the desirable coteau ridge, near the intersection of bayou tortue and garber road. Janin Farms features 30 homesites on 40 acres. Underground utilities include curb and gutter, city water and sewer, natural gas, Cox cable, and slemco electric.

Read More » Read Less »

Lisa Sheppert Agent Cell: (337) 277-2077

Mortgage Calculator

%
years/fixed
yearly
yearly (est.)
(Payments are an estimate and may vary by lender)

Estimated Payment

$ 1,016.80 per month $920.78 Principal & Interest $0.00 Property Tax (data not provided by mls) $96.02 Homeowner's Insurance

Property Details

Property Type: Land - Residential
Lot Size: 1.01 Acres

Feature Descriptions

Association Fee: $300/Annually
Community Features: None
Current Use: Lot
Days on Site: 1884
Electric On Property: Yes
Exclusions: None
Fencing: None
HOA Y/N: Yes
Lot: Flag Lot, Suburban, Curbs & Gutters, Lot Staked, City Lot, Cleared,1 - 2.99 Acres
Lot Dimensions: 120 x 387.58
Other Structures: None
Parcel Number: 6166965
Possible Use: Single Family
Sewer: Public Sewer
Utilities: Cable Connected, Electricity Connected, Natural Gas Connected, Phone Connected
Waterfront Features: None

Schools

High School: Comeaux
Middle School: Broussard
Elementary School: Drexel

Disclaimer: The accuracy of all information regardless of source, including but not limited to square footage and lot size, is deemed reliable but not guaranteed nor warranted and should be personally verified through personal inspection by and/or with the appropriate professionals.

Listed By / Shown By

Listed By

Agency Name: Reliance Real Estate Group
Agency Phone: (337) 277-5244
Agent Name: Anna Ward

agent picture

Shown By

Agent Name: Lisa Sheppert
Agent Phone: (337) 277-2077
Agency Title: Compass

IDX logo

Latter & Blum
430 Notre Dame St.
New Orleans, LA 70130
(866) 794-1022
Disclaimer: All information deemed reliable but not guaranteed. All properties are subject to prior sale, change or withdrawal. Neither listing broker(s) or information provider(s) shall be responsible for any typographical errors, misinformation, misprints and shall be held totally harmless. Listing(s) information is provided for consumers personal, non-commercial use and may not be used for any purpose other than to identify prospective properties consumers may be interested in purchasing. Information on this site was last updated 03/24/2026. The listing information on this page last changed on 03/24/2026. The data relating to real estate for sale on this website comes in part from the Internet Data Exchange program of Delta Media Group MLS (last updated Tue 03/24/2026 5:15:41 AM EST) or Fort Polk MLS (last updated Mon 03/23/2026 11:30:53 PM EST) or SWLAR MLS (last updated Mon 03/23/2026 11:35:09 PM EST) or Greater Baton Rouge MLS (last updated Mon 03/23/2026 11:30:25 PM EST) or GSREIN MLS (last updated Tue 03/24/2026 1:10:28 AM EST) or Bayou MLS (last updated Mon 03/23/2026 11:20:44 PM EST) or Pearl River MLS (last updated Mon 03/23/2026 11:24:16 PM EST) or GCLAR MLS (last updated Mon 03/23/2026 11:12:08 PM EST) or Realtor Association of Acadiana (last updated Mon 03/23/2026 11:22:32 PM EST) or MLS United (last updated Tue 03/24/2026 2:06:12 AM EST). Real estate listings held by brokerage firms other than Compass may be marked with the Internet Data Exchange logo and detailed information about those properties will include the name of the listing broker(s) when required by the MLS. All rights reserved.
Privacy Policy / DMCA Notice / ADA Accessibility

Agency License Information: Latter & Blum | Compass is licensed in Louisiana, Texas and Mississippi.


Login to My Homefinder

Pixel